Cải tạo nhà phố Q.3
Chủ trì thiết kế: Lê Văn Quý
Thi công: Nhà như Mới
+
Giám sát: Nguyễn Hữu Trọng
Với hiện trạng là một căn nhà đã cũ 2 mặt tiền nằm trong hẻm 4m cạnh trục đường chính Lê Văn Sỹ, xung quanh khu được quy hoạch đồng đều, đều từ 1 đến 2 lầu và mái. Dưới đây là hình ảnh hiện trạng căn nhà trước khi cải tạo
Mặt tiền với đường nét kiến trúc thập niên 90, đã cũ kĩ

Phần nội thất trong nhà cũng vậy, trân bê tông, các đường nét chỉ trần, tường đồng nhất phong cách








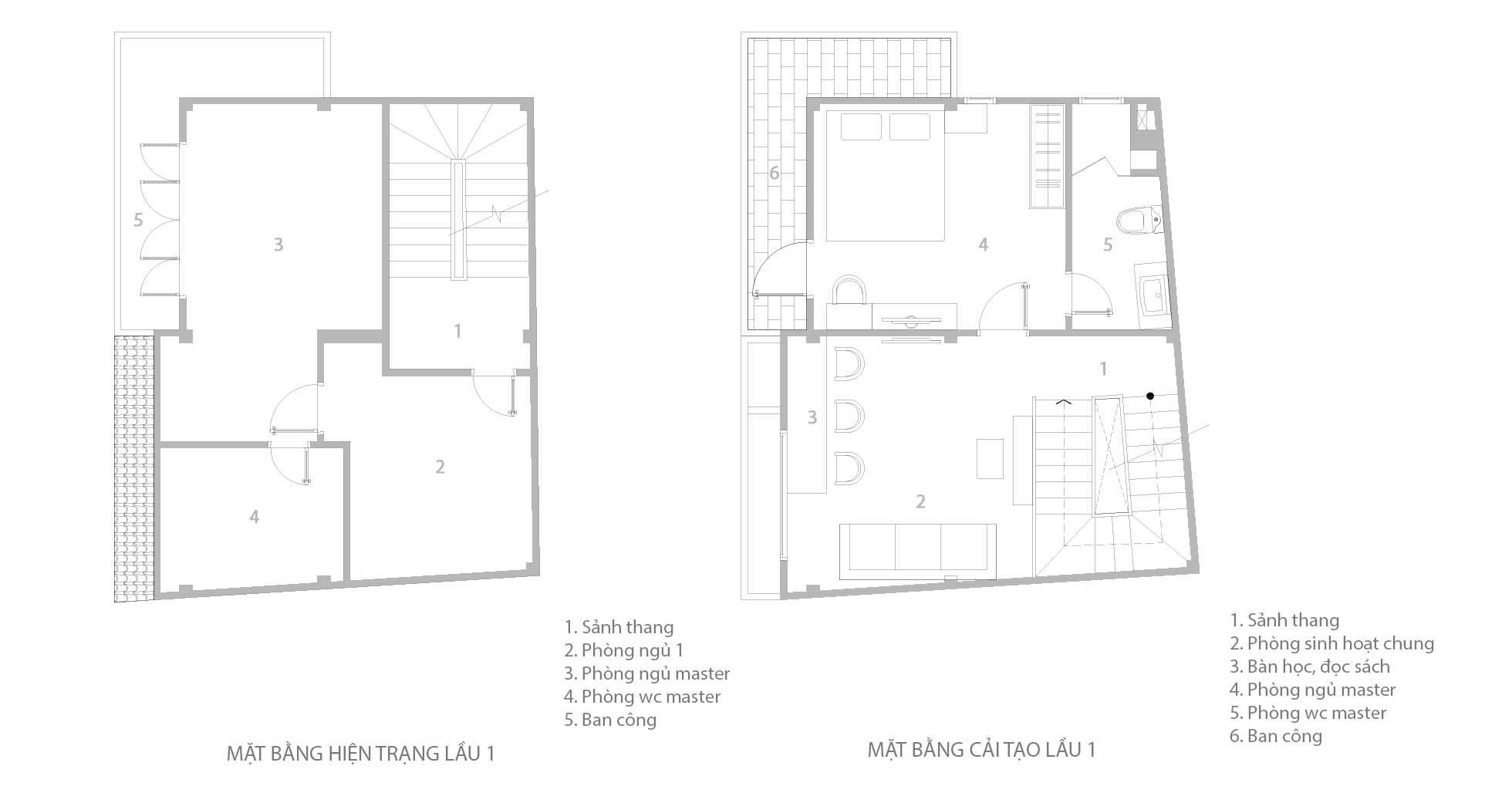
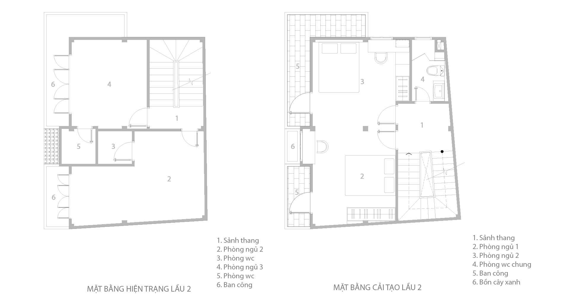
Với hiện trạng phần nội thất trong nhà đã xuống cấp, gạch và tường bắt đầu bong tróc. Cách bố trí, công năng hiện tại không phù hợp, bố trí vị trí các phòng vệ sinh chồng chéo dẫn đến hiện tượng sàn và tường bị thấm. Bố trí thang, vị trí các phòng ốc gây cản ánh sáng, khó thông thoáng điều hòa không khí trong nhà lâu ngày dẫn đến ẩm mốc. Số lượng phòng thì nhiều nhưng diện tích nhỏ, gây bí bức khi sinh hoạt trong phòng.
Dựa trên các vấn đề đó chúng tôi đã đề xuất phương án thiết kế cho chủ nhà như sau:
- Gom lại phòng vệ sinh thành một trục chính, đi thẳng 1 hộp gen kĩ thuật và ống đặt âm sàn để tránh bị thấm, ẩm mốc sàn và dễ dàng bảo trì, bảo dưỡng khi có vấn đề
- Thiết kế lại để tận dụng tăng diện tích phòng lên vị trí nhiều nhất và bố trí lại phù hợp theo nhu cầu số lượng người sinh hoạt trong nhà
- Dời vị trí thang để tăng diện tích sử dụng của các không gian còn lại
- Mở lỗ thông tầng để lấy sáng, thông gió tránh bị ẩm mốc tồn đọng trong nhà
- Cải tạo lại toàn bộ hệ thống cấp điện, nước cho công trình
Xin mời các bạn tham khảo mặt bằng cải tạo bên dưới





Và nội thất trong nhà được thiết kế theo phong cách hiện đại, tối giản, màu sắc trầm ấm, chú trọng chủ yếu về công năng, không gian và phù hợp với nhu cầu của người sử dụng.
Phối cảnh mặt tiền tận dụng lại phần khung nhà cũ, làm mới hệ thống thoát nước mưa giấu sàn và làm phần hộp để giấu đi phần dầm sàn đang lộ ra.
.jpg)
.jpg)
.jpg)
.jpg)
Nội thất được thiết kế lại gòn gàng, tinh tế
.jpg)


Phần cầu thang sắt giúp đẩy nhanh tiến độ thi công và tiết kiệm chi phí cho chủ nhà




Phòng ngủ master



Sảnh thang lầu 2

Phòng ngủ của các bé trai được tận dụng không gian mở, liên kết thông nhau để tăng không gian sinh hoạt, vui chơi, để đáp ứng với điều kiện hoạt bát, vui đùa của các bé trai. Màu sắc cũng được thiết kế nhấn mảng để tạo không khí tươi trẻ, vui tươi trong căn phòng





Phòng vệ sinh dùng chung ở lầu 2


Phần tầng áp mái mở thêm ô thông tầng để tận dụng ánh sáng mặt trời, khô thoáng và lưu dẫn, thông thoáng không khí trong nhà.

Mảng gạch thông gió vừa trang trí vừa tăng khả năng thông thoáng, tăng lưu lượng lưu thông không khí cho căn nhà


Sân thượng phía trước tận dụng hết không gian, làm bàn tiệc bbq ngoài trời hoặc tận dụng làm không gian ăn uống, thư giãn mỗi dịp gia đình sum vầy, đoàn tụ



Để đáp ứng nhu cầu sử dụng và công năng cần thiết cho gia đình, chúng tôi cố gắng tận dụng lại những thứ cũ nhưng mà vẫn còn sử dụng được và thay đổi lại các vật liệu, thiết bị đạt chuẩn, đảm bảo chất lượng, sử dụng lâu dài cho chủ nhà. Để căn nhà được khoác lên một chiếc áo mới với vẻ hiện đại, tối giản và đầy đủ.
Các bạn nghĩ sao về sự thay đổi này? Chúng tôi sẽ cập nhật hình ảnh hoàn thiện sớm. Nếu bạn cảm thấy thú vị và có nhu cầu cần tìm đơn vị thiết kế, thi công trọn gói thì hay liên hệ với chúng tôi để được tư vấn và báo giá miễn phí nhé. Chúng tôi rất hân hạnh được phục vụ các bạn.
Xin mời các bạn tham khảo thêm các dự án khác của chúng tôi nhé
Cảm ơn các bạn rất nhiều
Quận 3, 11.2020


